Gå til: Plantegninger | Fasade | Kontaktskjema
315 – INSTELHAUG
Hytte med god takhøyde.
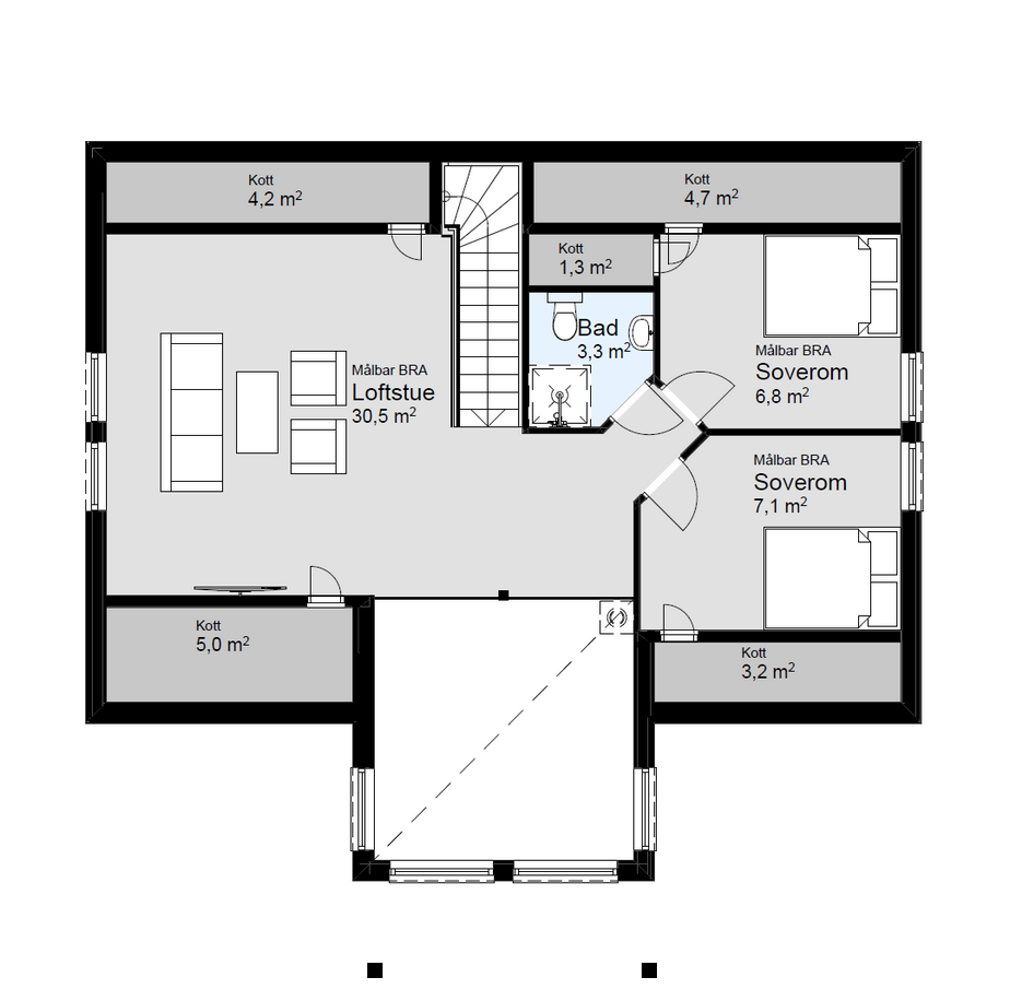
Instelhaug gir rom for å samle hele storfamilien, med hele fem soverom og en praktisk og god loftsstue. Den åpne og romslige stue-/kjøkkensonen på over 45m2 skaper rom for hyggelige samtaler og gode øyeblikk. Her løfter også taket seg over fem meter opp, som gjør at den vakre naturen inn inviteres inn gjennom de store vinduene.
Fra kjøkkene kan du ta deg ut på hyttens overbygde uteplass, hvor du kan nyte en deilig kaffekopp til ro og stillhet.
TEKNISK DATA
PLANTEGNINGER
ØNSKER DU MER INFORMASJON?
Fyll ut skjemaet, så kontakter vi deg for en hyggelig boligprat!
VIL DU TILPASSE HUSET?
Alt kan tilpasses for å imøtekomme dine ønsker og behov. Fordelen med å bygge nytt hus er at du kan tilpasse det etter egne ønsker. Vi hjelper deg hele veien fra idé til ferdig bolig med fagkunnskap og råd for å skape din perfekte bolig.







