Gå til: Plantegning | Fasade | Kontaktskjema
1111 – Flermannsbolig
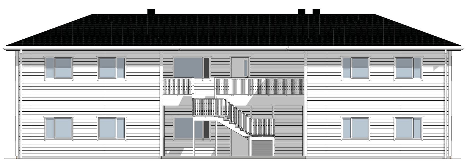
Flermannsbolig med stort potensiale
Bolig 1111 består av seks leiligheter fordelt på to etasjer i et klassisk bygg med moderne detaljer. Litt variasjon i enhetenes størrelse og innhold gjør at man dekker ulike behov. Alle enhetene har tilgang til egne uteområder.
Tilgjengelig bolig. Gjelder kun enheter på bakkeplan.
TEKNISK DATA
Største lengde: 13,8 m
Største bredde: 23,4 m
Bruksareal: 459,1 m²
Bebygd areal: 286,1 m²
Antall enheter: 6
Energimerking: Oransje - B
PLANTEGNING
ØNSKER DU MER INFORMASJON?
Fyll ut skjemaet, så kontakter vi deg for en hyggelig boligprat!
VIL DU TILPASSE HUSET?
Alt kan tilpasses for å imøtekomme dine ønsker og behov. Fordelen med å bygge nytt hus er at du kan tilpasse det etter egne ønsker. Vi hjelper deg hele veien fra idé til ferdig bolig med fagkunnskap og råd for å skape din perfekte bolig.







