Gå til: Plantegning | Fasade | Kontaktskjema
1110 – Flermannsbolig
Herskapelig og flott flermannsbolig
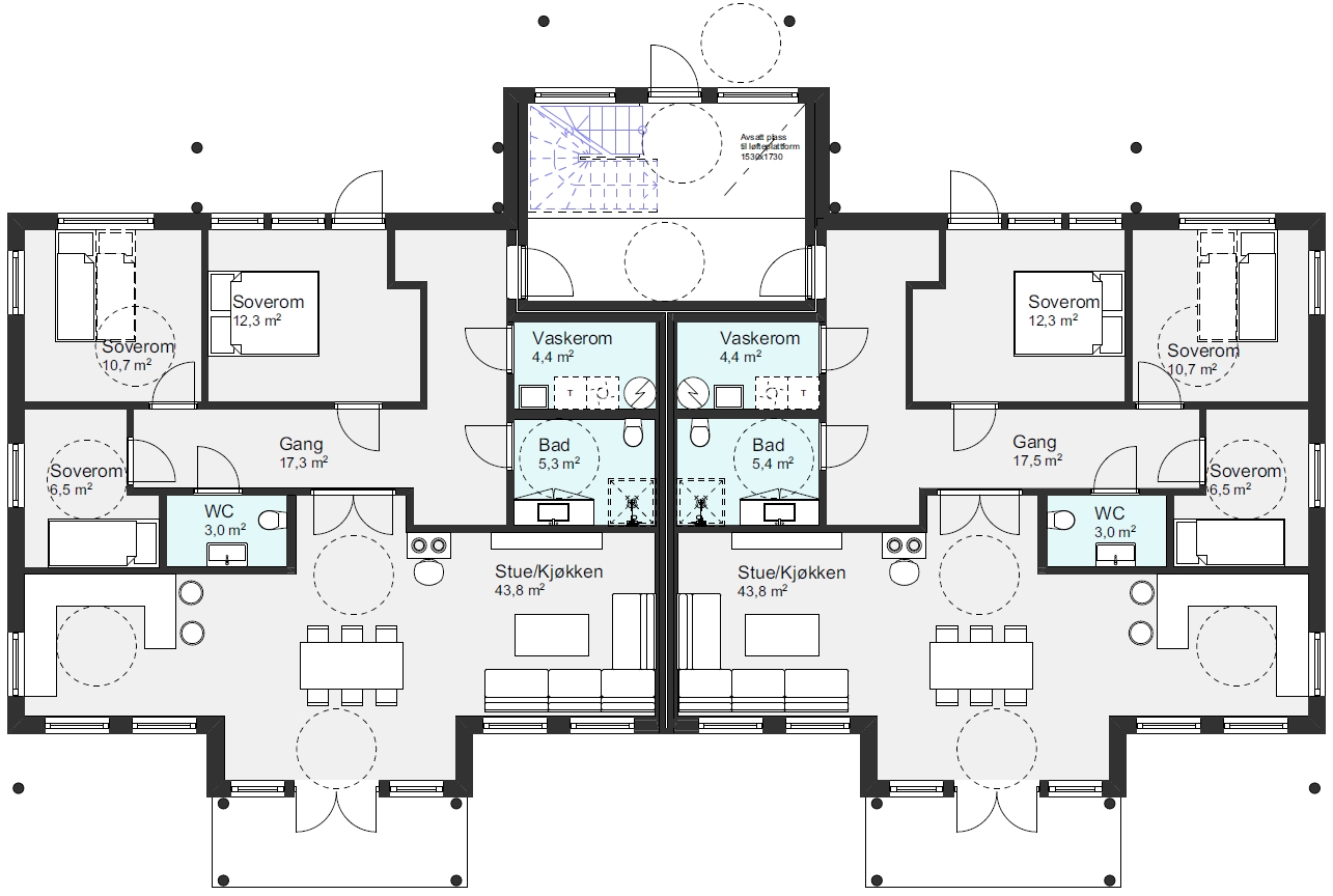
Romslige leiligheter med preg av tradisjonell herskapelig stil. Man har her felles tilkomst med trappeoppgang og avsatt plass til løfteplattform. Leilighetene har tilgang til terrasse/balkong fra et romslig allrom.
Tilgjengelig bolig.
TEKNISK DATA
Største lengde: 15,07 m
Største bredde: 26,4 m
Bruksareal: 489,2 m²
Bebygd areal: 347,1 m²
Antall enheter: 4
Energimerking: Oransje - A
PLANTEGNING
ØNSKER DU MER INFORMASJON?
Fyll ut skjemaet, så kontakter vi deg for en hyggelig boligprat!
VIL DU TILPASSE HUSET?
Alt kan tilpasses for å imøtekomme dine ønsker og behov. Fordelen med å bygge nytt hus er at du kan tilpasse det etter egne ønsker. Vi hjelper deg hele veien fra idé til ferdig bolig med fagkunnskap og råd for å skape din perfekte bolig.







