Gå til: Plantegning | Fasade | Kontaktskjema
1109 – Flermannsbolig
Flermannsbolig i tre, med moderne preg
Bolig 1109 har en utførelse med moderne og stramme linjer. Leilighetene fylles av lys fra store moderne vinduer. Man har utgang til et overbygd uteareal fra allrommet. I andre etasje gir skrå himling luftige og romslige allrom.
Tilgjengelig bolig. Gjelder kun enheter på bakkeplan.
TEKNISK DATA
Største lengde: 16,03 m
Største bredde: 15 m
Bruksareal: 331,7 m²
Bebygd areal: 243,5 m²
Antall enheter: 4
Energimerking: Rød - B
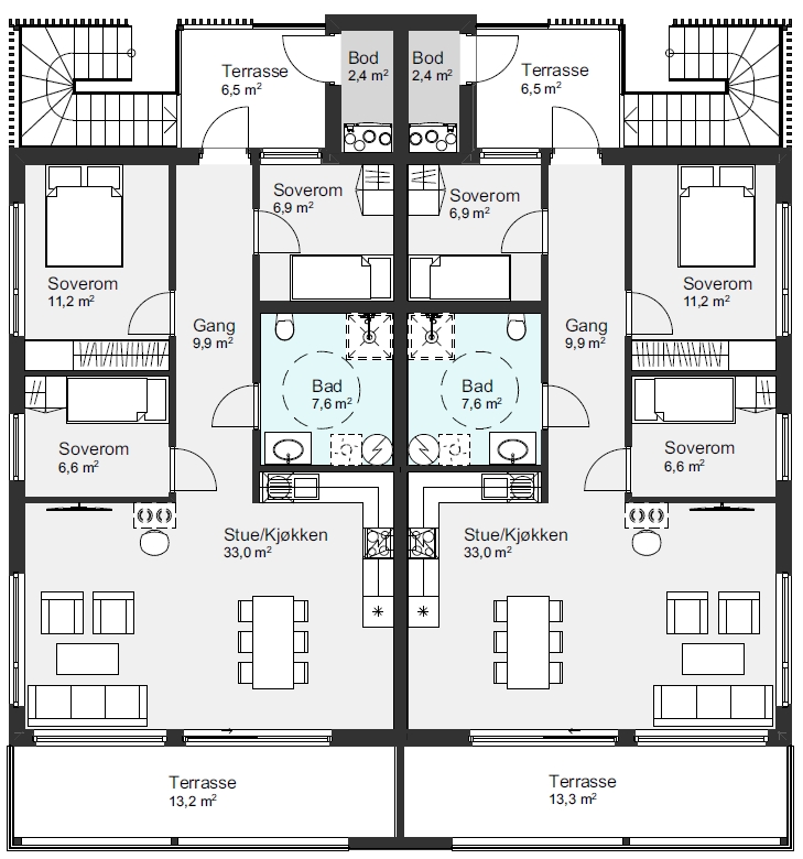
PLANTEGNING
ØNSKER DU MER INFORMASJON?
Fyll ut skjemaet, så kontakter vi deg for en hyggelig boligprat!
VIL DU TILPASSE HUSET?
Alt kan tilpasses for å imøtekomme dine ønsker og behov. Fordelen med å bygge nytt hus er at du kan tilpasse det etter egne ønsker. Vi hjelper deg hele veien fra idé til ferdig bolig med fagkunnskap og råd for å skape din perfekte bolig.







