Gå til: Plantegning | Fasade | Kontaktskjema
1107 – Flermannsbolig
Moderne rekkehus med flere takterrasser
Bolig 1107 er basert på eneboligen LUNA plassert i rekke. Dette er en romslig bolig med moderne arkitektur og spennende bruk av byggematerialer. På denne modellen står man fritt til å velge antall enheter man ønsker, ut fra forholdene på tomten. Terrasser utenfor både kjøkken og loftstue, gir boligen det lille ekstra.
TEKNISK DATA
Største lengde: 13 m
Største bredde: 26,25 m
Bruksareal: 645,8 m²
Bebygd areal: 358,5 m²
Antall enheter: 3
Energimerking: Oransje - B
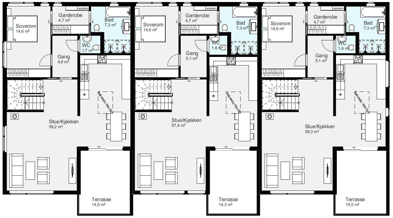
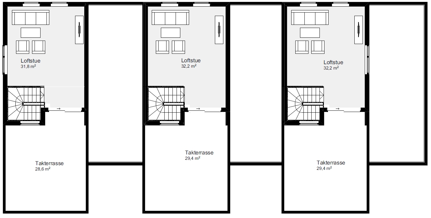
PLANTEGNING
ØNSKER DU MER INFORMASJON?
Fyll ut skjemaet, så kontakter vi deg for en hyggelig boligprat!
VIL DU TILPASSE HUSET?
Alt kan tilpasses for å imøtekomme dine ønsker og behov. Fordelen med å bygge nytt hus er at du kan tilpasse det etter egne ønsker. Vi hjelper deg hele veien fra idé til ferdig bolig med fagkunnskap og råd for å skape din perfekte bolig.








