Gå til: Plantegning | Fasade | Kontaktskjema
1106 – Flermannsbolig
Rekkehus med godt utnyttet areal
En kompakt bolig med integrert carport og stor terrasse. Her har man stor fleksibilitet når det gjelder antall enheter. Om man ønsker flere enheter i rekke, har man muligheten til det. Elementer som glatte veggflater sammen med stående kledning gir enhetene et stilrent og moderne uttrykk.
TEKNISK DATA
Største lengde: 10 m
Største bredde: 27,47 m
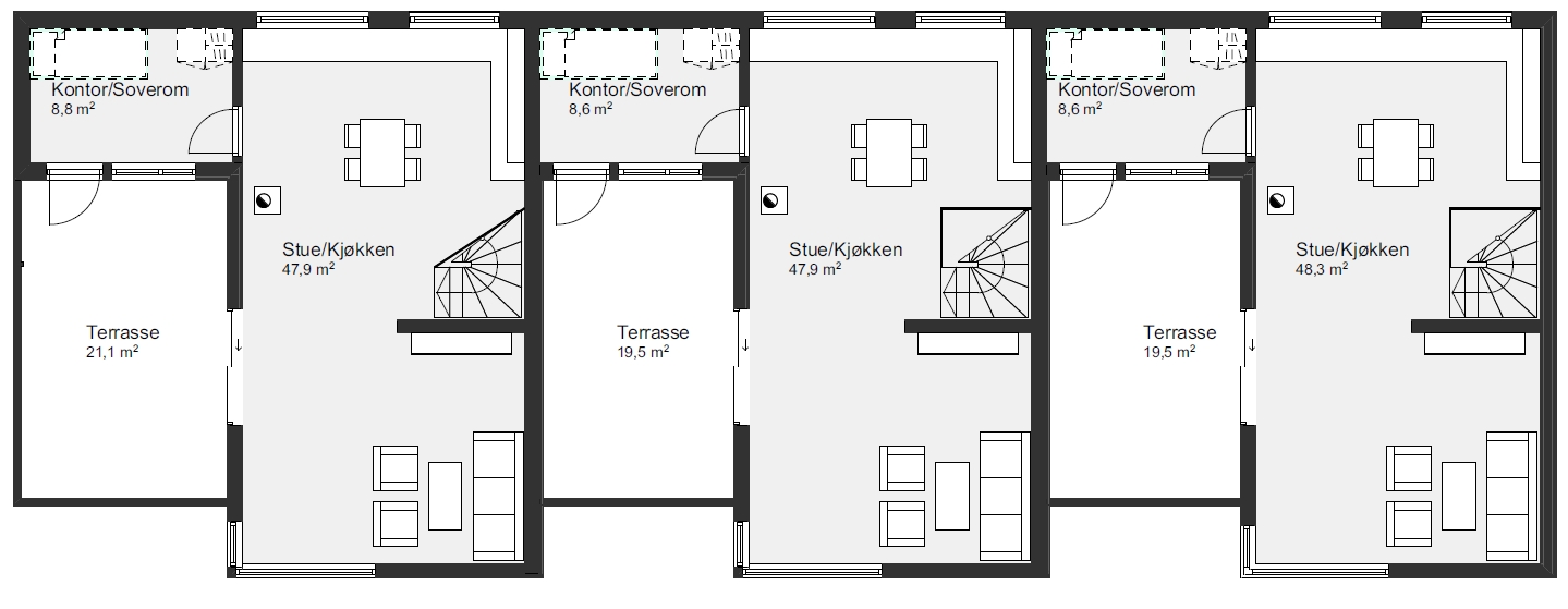
Bruksareal: 341,2 m²
Bebygd areal: 267,1 m²
Antall enheter: 3
Energimerking: Oransje - B
PLANTEGNING
ØNSKER DU MER INFORMASJON?
Fyll ut skjemaet, så kontakter vi deg for en hyggelig boligprat!
VIL DU TILPASSE HUSET?
Alt kan tilpasses for å imøtekomme dine ønsker og behov. Fordelen med å bygge nytt hus er at du kan tilpasse det etter egne ønsker. Vi hjelper deg hele veien fra idé til ferdig bolig med fagkunnskap og råd for å skape din perfekte bolig.







