Gå til: Plantegninger | Fasade | Kontaktskjema
228 – SCALA
MODERNE OG STILREN
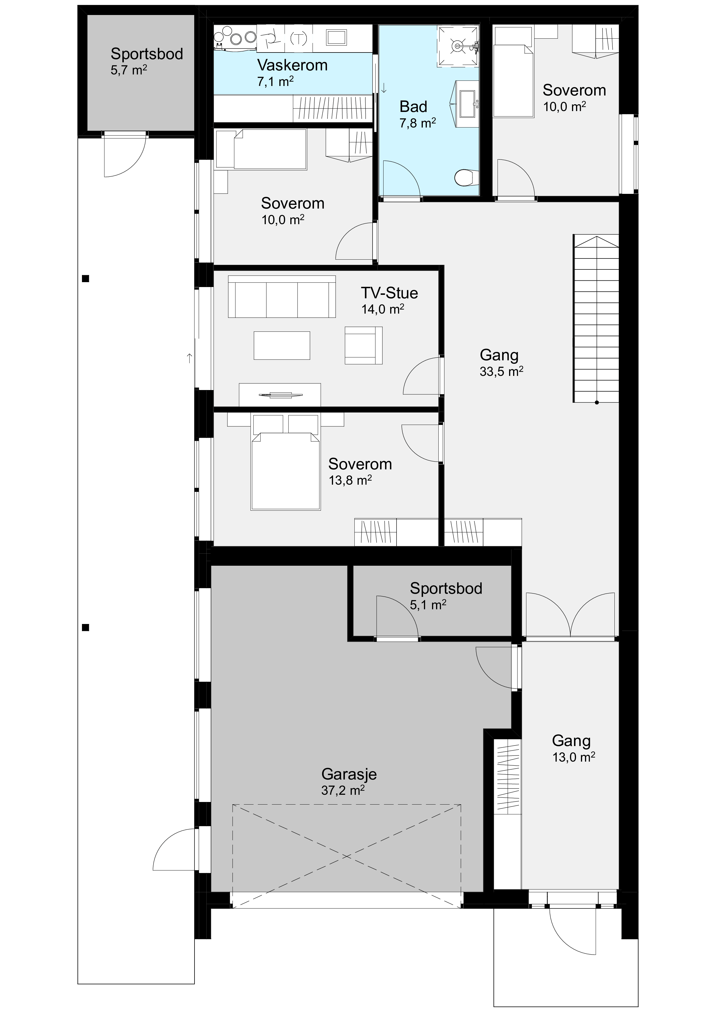
Scala er en stilren og moderne enebolig, med smarte løsninger og godt med plass. Første etasje har tre soverom, bad med tilknytning til vaskerom, og en egen TV-stue – perfekt for lek, gaming eller avslapning.
Andre etasje byr på hovedsoverom med walk-in garderobe og eget bad, samt en stor, åpen stue- og kjøkkenløsning på hele 50 m². Herfra har du direkte utgang til uteområdet, noe som gjør det enkelt å ta middagen eller kaffekoppen ut i frisk luft.
Med integrert garasje og sportsbod får du alt samlet – praktisk, oversiktlig og gjennomført.
TEKNISK DATA
ØNSKER DU MER INFORMASJON?
Fyll ut skjemaet, så kontakter vi deg for en hyggelig boligprat!
VIL DU TILPASSE HUSET?
Alt kan tilpasses for å imøtekomme dine ønsker og behov. Fordelen med å bygge nytt hus er at du kan tilpasse det etter egne ønsker. Vi hjelper deg hele veien fra idé til ferdig bolig med fagkunnskap og råd for å skape din perfekte bolig.
 
					






