Gå til: Plantegninger | Fasade | Kontaktskjema
227 – SKJONG
KLASSISK OG ROMSLIG
Med sine fem soverom og to stuer er Skjong en tradisjonsrik og klassisk familiebolig, med plass for hele storfamilien på sine 238 m². To fulle etasjer gir boligen mange spennende muligheter.
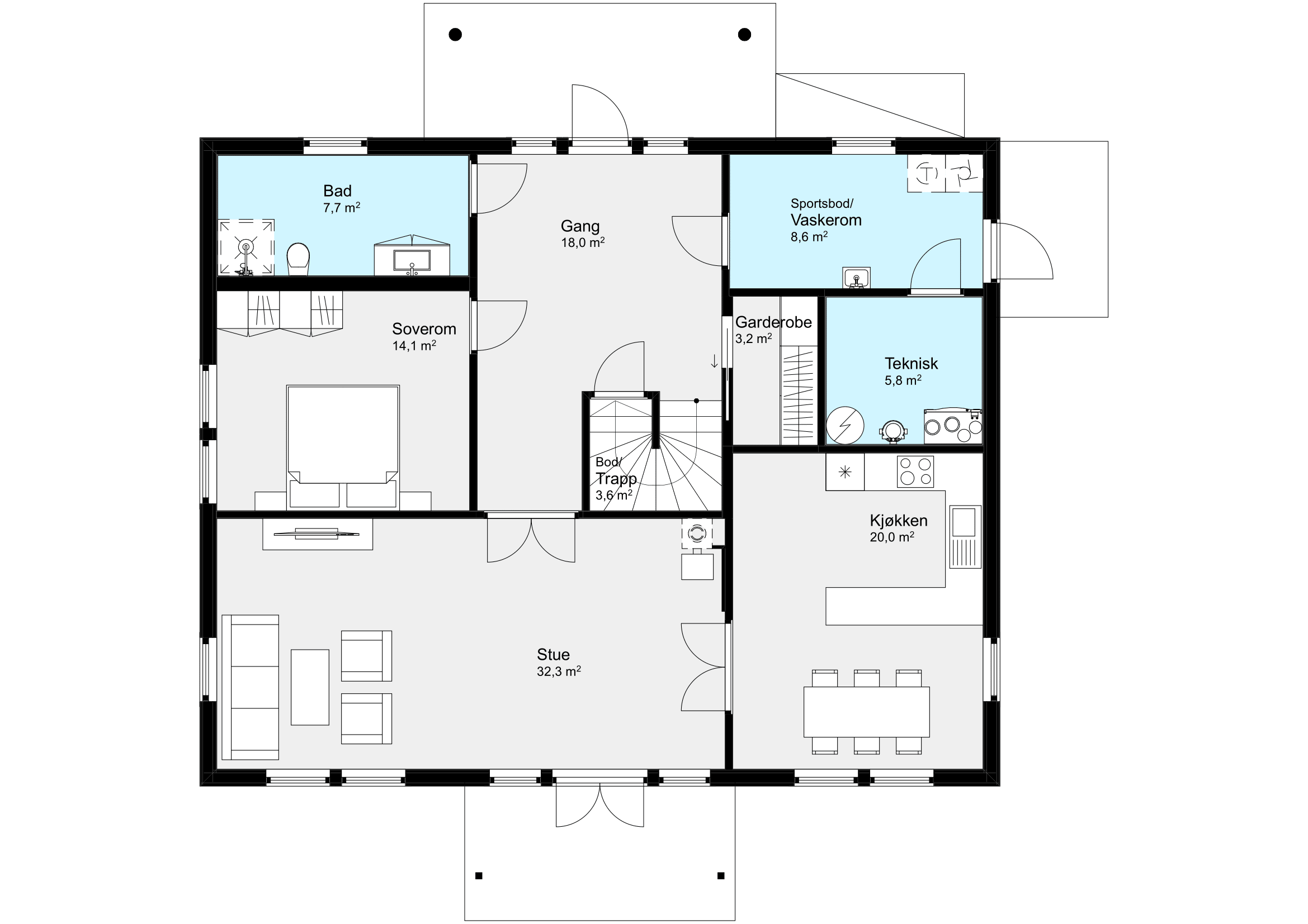
Den store entréen ønsker deg velkommen med rikelig plass til oppbevaring og trapp opp til andre etasje. Første etasje har i tillegg et bad, et stort soverom, en stue og et kjøkken. Vaskerommet har egen utgang, perfekt for familier med små barn.
I boligens andre etasje finner du store soverom, bad og gode garderobeløsninger. Den romslige loftstuen, med utgang til veranda, gir boligen flere soner for sosialt samvær og avslapning.
TEKNISK DATA
ØNSKER DU MER INFORMASJON?
Fyll ut skjemaet, så kontakter vi deg for en hyggelig boligprat!
VIL DU TILPASSE HUSET?
Alt kan tilpasses for å imøtekomme dine ønsker og behov. Fordelen med å bygge nytt hus er at du kan tilpasse det etter egne ønsker. Vi hjelper deg hele veien fra idé til ferdig bolig med fagkunnskap og råd for å skape din perfekte bolig.
 
					






