Gå til: Plantegninger | Fasade | Kontaktskjema
222 – LISBON
FUNKIS PÅ SITT ALLER BESTE
Lisbon er en ekstraordinær funkisvilla hvor ingenting mangler. Boligen kombinerer elementer av tre, fasadeplater og store vindusflater for et moderne uttrykk.
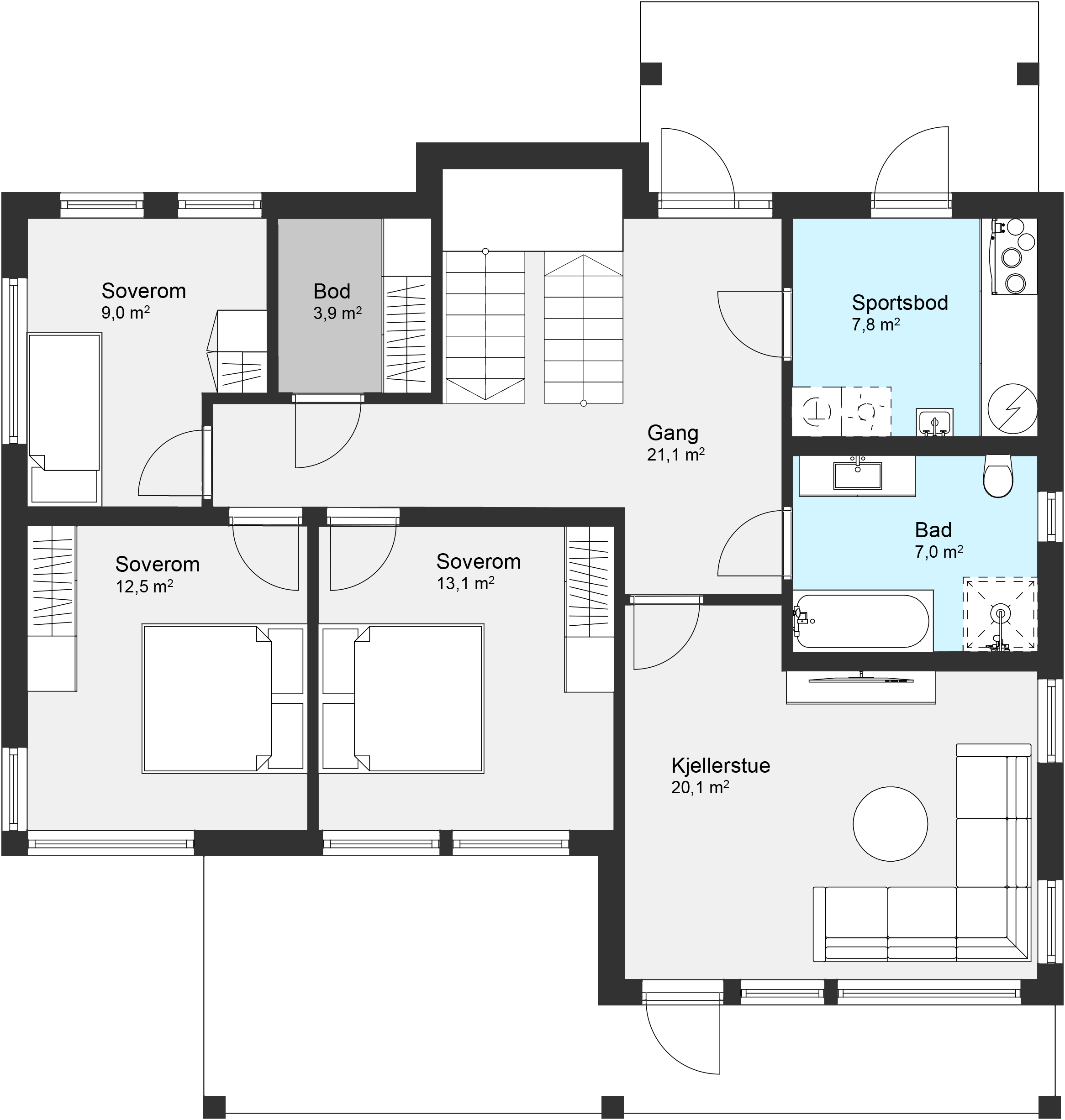
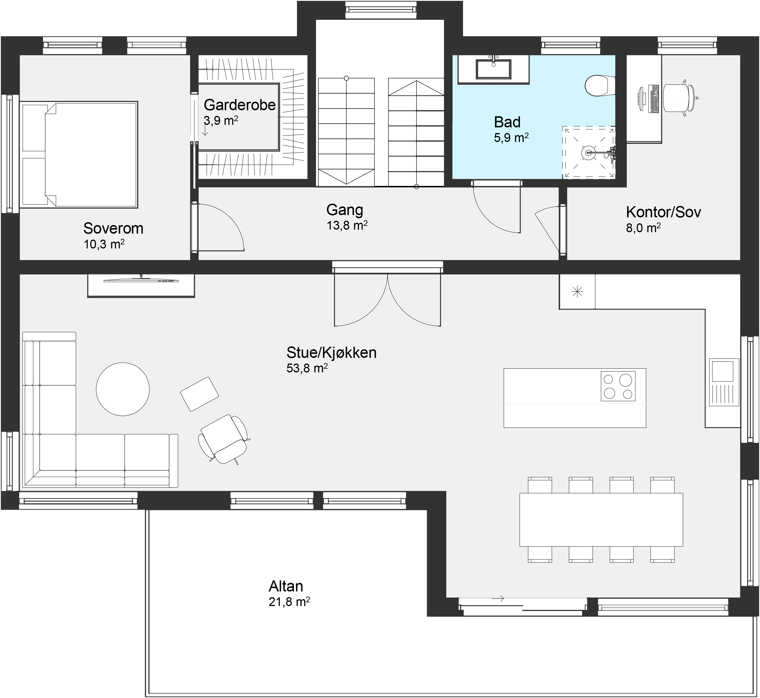
Boligen har fem soverom, tre i første etasje og to i andre – hvorav hovedsoverommet har både walk-in garderobe og bad. Stue- og kjøkkenløsningen i andre etasje har direkte utgang til altan og gir et åpent oppholdsrom med mye lys og utsikt.
Lisbon passer perfekt for deg som ønsker noe som skiller seg ut – både i uttrykk og bokvalitet – og som setter pris på moderne løsninger og god romfølelse.
TEKNISK DATA
ØNSKER DU MER INFORMASJON?
Fyll ut skjemaet, så kontakter vi deg for en hyggelig boligprat!
VIL DU TILPASSE HUSET?
Alt kan tilpasses for å imøtekomme dine ønsker og behov. Fordelen med å bygge nytt hus er at du kan tilpasse det etter egne ønsker. Vi hjelper deg hele veien fra idé til ferdig bolig med fagkunnskap og råd for å skape din perfekte bolig.
 
					






