Gå til: Plantegninger | Fasade | Kontaktskjema
218 – VEGA
SLIPPER NATUREN INN
Vega har alt du trenger på ett plan. Med storslåtte vinduer som strekker seg fra gulv til tak, inviteres de naturlige omgivelsene inn i stua og skaper en følelse av åpenhet.
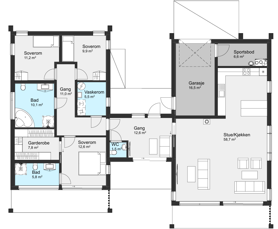
Med tre store soverom, to store bad, vaskerom, walk-in garderobe og et lite WC, er det god plass til hele familien – og litt til. Den integrerte garasjen og sportsboden gjør logistikken enkel, og alt er samlet på ett plan for maksimal tilgjengelighet.
Vega er et naturlig valg for deg som ønsker en moderne og komfortabel bolig med god plass, både inne og ute.
TEKNISK DATA
ØNSKER DU MER INFORMASJON?
Fyll ut skjemaet, så kontakter vi deg for en hyggelig boligprat!
VIL DU TILPASSE HUSET?
Alt kan tilpasses for å imøtekomme dine ønsker og behov. Fordelen med å bygge nytt hus er at du kan tilpasse det etter egne ønsker. Vi hjelper deg hele veien fra idé til ferdig bolig med fagkunnskap og råd for å skape din perfekte bolig.








