Gå til: Plantegninger | Fasade | Kontaktskjema
211 – BRAGA
LYS OG UTSIKT
Velkommen til moderne og rene Braga, med et minimalistisk preg, store vindusflater, og mye naturlig lys og utsikt.
I denne moderne og familievennlige boligen finner du alt du trenger. Boligen rommer hele fire soverom, to bad, en praktisk sportsbod/vaskerom med egen utgangsdør, og en åpen og sosial stue- og kjøkkensone.
Hovedsoverommet i andre etasje er en egen avdeling i huset. Her har du egen stue, store vindusflater og mye lys og utsikt. Vi viser bare én løsning – her er det mange måter å gjøre det på. Hvordan ser din Braga ut?
TEKNISK DATA
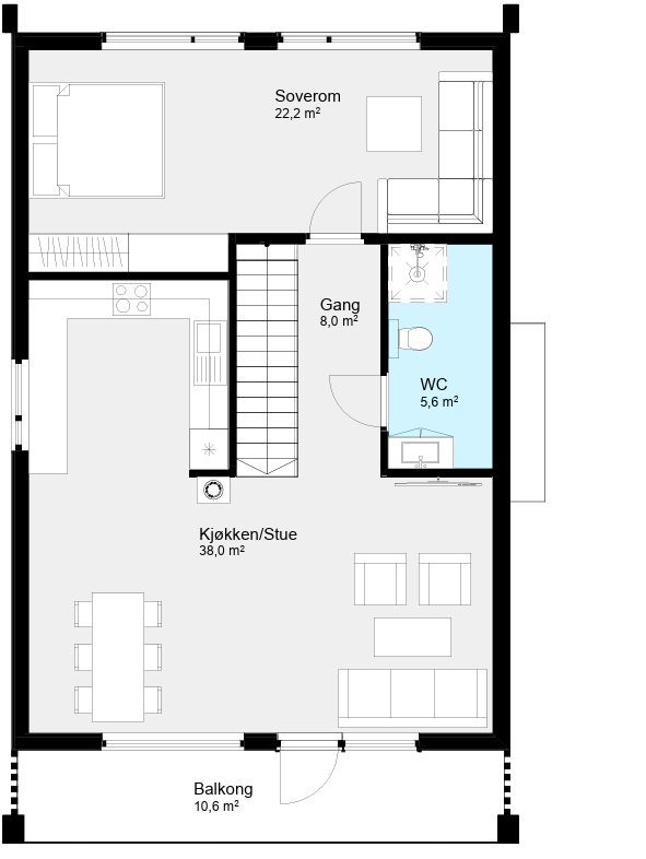
PLANTEGNINGER
ØNSKER DU MER INFORMASJON?
Fyll ut skjemaet, så kontakter vi deg for en hyggelig boligprat!
VIL DU TILPASSE HUSET?
Alt kan tilpasses for å imøtekomme dine ønsker og behov. Fordelen med å bygge nytt hus er at du kan tilpasse det etter egne ønsker. Vi hjelper deg hele veien fra idé til ferdig bolig med fagkunnskap og råd for å skape din perfekte bolig.
 
					







